公司总部:上海市普陀区同普路1272弄B栋
咨询热线:400-784-2878
企业官网:www.yipingsj.com
为了您的利益和我们的口碑,您的隐私将被严格保密
沪ICP备16049780号-1
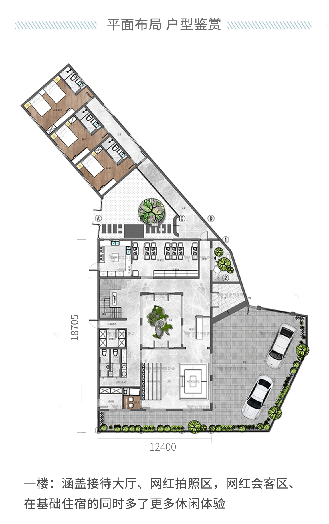
上海懿品装饰设计工程有限公司
本站内容懿品建筑设计留所有权 · 不承提法责任