在自建房设计的时候既要有鲜明的个性特征满足我们对良好视觉效果的需求,同时在户型结构设计的时候又要考虑到农村的实用性和合理性。因此想要盖自建房前期的设计是必不可少的,设计的投入往往会减少很多后期的浪费。今天给大家带来2套农村自建二层房屋设计图,简单大气、清新实用!

本户型外观新颖漂亮,造型兼具了美观和实用,同色系的文化石和石漆相呼应,伸出式门檐和阳台不仅增加了利用空间而且使房子凹凸有致,看起来大气又舒适欧式风格与现代简约元素完美结合,使整套别墅既有浪漫典雅的一面,又有简洁大气的一面,很好地满足了人们的生活品味与审美观。


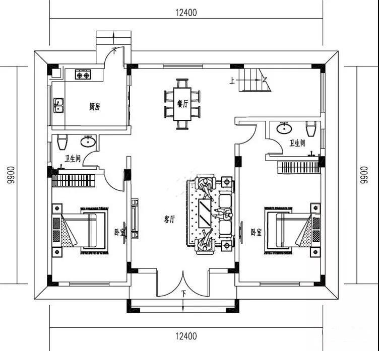
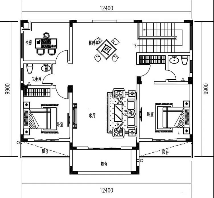
占地面积:12.4m*9.9m,125平方米左右;
建筑层高:二层
建筑高度:9.45米(含屋顶)

设计功能:
一层户型:客厅、厨房、餐厅、卧室(带卫生间)、卧室、卫生间;

二层户型:客厅、棋牌室、卧室(带卫生间)、卧室、书房、阳台;
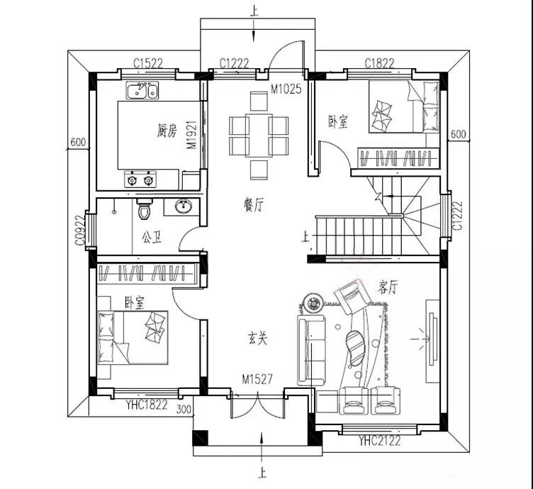
第二套:

本户型为二层小楼图,欧式风格,处处精致。户型简单合理。一层外墙可以用褐色文化石,整栋建筑给人的感觉的就是比较的精致小巧。

占地面积:10.0m*10.0m,100平方米左右;
建筑层高:二层;
建筑高度:9.6米(含屋顶);
设计功能:

一层户型:客厅、餐厅、厨房、卫生间、卧室×2;

二层户型:家庭厅、主卧(带书房)、卧室x2、卫生间、阳台、露台;
装修效果图:

客厅

卧室

厨房
看了这2款二层自建别墅,是不是想自己建一套呢?心动不如行动哦,赶快联系我们吧!